Etusivu
  Kaivonkansistot
    Venttiilihatut
    ø 180 mm
    Kevyet kaivonkansistot
    ø 315 mm putkelle
      ø 250 mm pihakansistot

    Rännikaivot
    Rännikaivot, RST-kannella
    Kaivonkansistot
      golfkentille

    ø 300 mm
    ø 335 mm
    Reunakivikansistot - ASY
    Neliökansistot 335x335 mm
    Suorakaidekansistot
    Kourulaattakansistot
    ø 337 mm
    ø 400 mm
    ø 500 mm
    Säätöputken laajennus
    ø 550 mm
    ø 550 mm E600 ja F900
    ø 600 mm
    ø 680 mm F900
    ø 640 mm
    Kaukolämpökansistot
    Palopostinkansistot
    ø 800 mm
    Lukittavat kansistot
    1200 x 600 mm
      Ovaalikansistot

    500 x 500 mm
    HEK / VEK kanaalit
      HEK kaivot

    624x624, 575x575, 285x285
    Tekniikkakansistot
      jousiavustuksella

    Pinnoitettavat
      neliökansistot

    Kivetysalueen
      säädettävät kehykset

    Suuriaukkoiset saranoidut
      tekniikkakansistot

    Suuriaukkoiset
      tekniikkakansistot

    Kitakansistot
    Kitasiepparit
    Läpivirtaavat
      kitakakansistot

    Kitakansistot
      1500 x 3500 mm

    Avattavat
      kitakaivot

    Sadevesikuvut
    Korotusrenkaat
    Välikannet
    Tiivisteet
    Valurautaiset
      putkenhatut ja tiivisteet

    Galvanoidut
       metalliset kansistot

    HST/RST kaasutiiviit
       neliökansistot

    Hiekankeräysaltaat
    HST/RST-rännikaivot
    HST/RST-kansistot
       HST/RST-kaivot

    Toimitus-, takuu- ja
       palautusehdot

  Linjakuivatuskourut
  Komposiittikansistot
  Magneettinostimet
  Betonituotteet
  Muovituotteet
  Kulkuaukonsuojat
  Erikoisvalut
  Vapaa-ajan tuotteet
  Yrityskuvaus
  Messut ja tapahtumat
  Jupalcon projektit
  Lataa PDF-hinnastot
  Toimitusehdot
  Avoimet työpaikat
  Asiakaspalvelu
  In english


 


Pinnoitettavat neliökansistot


HST / RST tai alumiini
Pinnat voidaan viimeistellä usealla eri tavalla


Jupalcon pinnoitettavat kansistot ovat valmistettu teräslevystä tai alumiinista. Niissä on mallista riippuen valmiina kuormitusta vastaavat raudoitukset.

Lujuusluokat kansistoille ovat B125 - D400. Jotta kuormituskestävyydet saavutetaan on asennusvara täytettävä kokonaan vähintään K45 betonilaadulla.

Betonitäyttö jätetään pintamateriaalin verran vajaaksi. Jos kansiston pintamateriaaliksi valitaan esim. laatoitus eikä asennusvaraa täytetä kokonaan betonilla on kuormituskestävyys alempi.

Kansistot voidaan päällystää asennuspaikan mukaan esim. laatoilla, mosaiikilla tai sävytetyllä betonilla. Kehyksestä ja kannesta jää näkyviin vain ohuet reunat sekä nostopisteet. Kehys ja kansi toimitetaan aina settinä.

Erittäin vaativiin kohteisiin kansisto voidaan valmistaa kokonaan haponkestävästä teräksestä.

Jupalcon kansistoja on saatavilla tiivisteellisenä jolloin kansisto on vesi-, haju-, kaasu,- sekä pölytiivis. Tiiveys voidaan varmistaa kannen lukitusmekanismilla, joka pitää kannen tukevasti paikoillaan sekä estää ulkopuolisten henkilöiden pääsyn kaivoon.

Toteutamme kansistoja myös kohteen mittojen mukaan.



    Lattialuukut
    Huoltotilat
    Tarkastuskaivot
    Pumppaamot
    Torialueet







Kevyen liikenteen alueet, painoluokitus B125 (15 tn)
HST / RST tai alumiini
Pinnat voidaan viimeistellä usealla eri tavalla





Kaasutiiviit pinnoitettavat neliökansistot RST / HST
lujuusluokka B125, tiivisteellä

Nimitys
Lujuus-
luokka
Kehyksen
ulkomitat
A x B
Vapaa
aukko
C x D
Kokonais-
korkeus H mm
Jupalco
LVI-koodi
Alv 0%
Pinnoitettava kansisto 320 x 320
tiivisteellä
B125 (15tn)
320 x 320180 x 18070
2604325
 
 
Pinnoitettava kansisto 420 x 420
tiivisteellä
B125 (15tn)
420 x 420280 x 28070
2604326
Pinnoitettava kansisto 600 x 600
tiivisteellä
B125 (15tn)
600 x 600440 x 44085
2604329
Pinnoitettava kansisto 780 x 780
tiivisteellä
B125 (15tn)
780 x 780600 x 600100
2604332
Soviteosa, lisävarusteena tartuntaraudat
(soviteosan kanssa kansistojen vapaa aukko voi muuttua)
Muoviputkille ja betonirenkaalle
Tiedustele eri kokovaihtoehtoja







Liikennealueelle, painoluokitus D400 (40 tn)
HST / RST tai alumiini
Pinnat voidaan viimeistellä usealla eri tavalla





Kaasutiiviit pinnoitettavat neliökansistot RST / HST
lujuusluokka D400, tiivisteellä

Nimitys
Lujuus-
luokka
Kehyksen
ulkomitat
A x B
Vapaa
aukko
C x D
Kokonais-
korkeus H mm
Jupalco
LVI-koodi
Alv 0%
Pinnoitettava kansisto 500 x 500
tiivisteellä
D400 (40tn)
500 x 500360 x 360150
2604327
 
 
Pinnoitettava kansisto 800 x 800
tiivisteellä
D400 (40tn)
800 x 800620 x 620150
2604333
Pinnoitettava kansisto 1200 x 1200
tiivisteellä
D400 (40tn)
1200 x 1200960 x 960195
2604334
Soviteosa, lisävarusteena tartuntaraudat
(soviteosan kanssa kansistojen vapaa aukko voi muuttua)
Muoviputkille ja betonirenkaalle
Tiedustele eri kokovaihtoehtoja







Pinnoitettavat 2-osaiset kansistot

Liikennealueelle, painoluokitus D400 (40 tn)
HST / RST tai alumiini
Pinnat voidaan viimeistellä usealla eri tavalla



Kaasutiivis pinnoitettava suorakaidekansisto RST / HST
lujuusluokka D400, tiivisteellä

Nimitys
Lujuus-
luokka
Kehyksen
ulkomitat
A x B
Vapaa
aukko
C x D
Kokonais-
korkeus H mm
Jupalco
LVI-koodi
Alv 0%
Pinnoitettava kansisto 1420 x 820
tiivisteellä. 2-osainen kansiratkaisu
irroitettavalla välikappaleella
 
D400 (40tn)
1420 x 8201180 x 580290
2604335
 
 



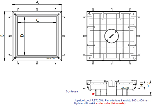
Pinnoitettavat neliökansistot läpiviennillä

HST / RST tai alumiini
Pinnat voidaan viimeistellä usealla eri tavalla

Pinnoitettava kansisto, jossa kannen keskellä on läpivienti. Sopii messuhalleihin tai torialueille joissa tekniikkakaivoista on tuotava esim. sähkökaapeleita tai vesiletkuja lattiapinnan yläpuolelle. Kansisto voidaan sulkea kokonaan peitelevyn avulla. Kysy myynnistämme eri kokovaihtoehtoja..

Kaasutiiviit pinnoitettavat neliökansistot RST / HST
läpiviennillä, tiivisteellä

Nimitys
Lujuus-
luokka
Kehyksen
ulkomitat
A x B
Vapaa
aukko
C x D
Korkeus H1
mm
Jupalco
koodi
Alv 0%
Pinnoitettava kansisto 420 x 420
tiivisteellä sekä läpiviennillä
 
tarkastusluukun vapaa aukko 80mm
 
B125 (15tn)
420 x 420280 x 28080
RST2050
 
 
Pinnoitettava kansisto 800 x 800
tiivisteellä sekä läpiviennillä
 
tarkastusluukun vapaa aukko 150mm
 
D400 (40tn)
800 x 800620 x 620160
RST2051
Soviteosa, lisävarusteena tartuntaraudat
(soviteosan kanssa kansistojen vapaa aukko voi muuttua)
Muoviputkille ja betonirenkaalle
Tiedustele eri kokovaihtoehtoja



 Jupalco Oy varasto

Kylänportti 10
02940 ESPOO

Asiakaspalvelu avoinna
arkisin klo 8.00-16.00

 Asiakaspalvelun yhteystiedot

myynti: 09 - 4250 560
tilaukset: myynti(at)jupalco.com

 PDF-hinnastot ja esitteet

Lataa koneellesi Jupalcon hinnastoja
sekä esitteitä PDF-muodossa